Kitchen Cabinet Blueprints

Kitchen Cabinet Blueprints: Master Your DIY Skills

Kitchen Cabinet Blueprints: A Simple Guide Building or remodeling a

Kitchen Cabinet Blueprints: A Simple Guide

Building or remodeling a kitchen is exciting. One key part is the cabinets. Cabinets hold your dishes, pots, and food. They help keep your kitchen clean and tidy. To build cabinets, you need blueprints. These blueprints are like maps. They show how to make and place each cabinet.

What Are Kitchen Cabinet Blueprints?

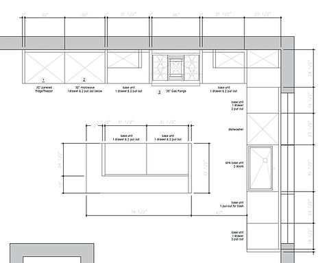
Kitchen cabinet blueprints are detailed drawings. They show the size and shape of each cabinet. They tell where to put shelves, doors, and drawers. They help workers build the right cabinets. They also help plan the kitchen layout.

Without blueprints, building cabinets can be hard. You might make mistakes or waste materials. Blueprints give clear instructions. They make sure everything fits well in the kitchen.


Why Are Blueprints Important?

  • Clear Plan: Blueprints give a clear plan for building.
  • Accurate Size: They show exact sizes and measurements.
  • Better Design: You can see how cabinets fit in the kitchen.
  • Save Time: Builders work faster with clear instructions.
  • Reduce Errors: Blueprints help avoid costly mistakes.
Kitchen Cabinet Blueprints: Master Your DIY Skills

Credit: www.reddit.com

Basic Parts of Kitchen Cabinet Blueprints

Blueprints have many parts. Here are some important ones:

PartDescription
Floor PlanShows where cabinets go in the kitchen space.
Elevation ViewShows the front view of cabinets on the wall.
Section ViewShows a cut-through view inside a cabinet.
DimensionsShows the size of cabinets in inches or centimeters.
Materials ListLists woods, screws, handles, and other materials needed.

How to Read Kitchen Cabinet Blueprints

Reading blueprints is easy if you know what to look for. Start with the floor plan. It shows the kitchen layout. Cabinets are drawn as boxes. Each box is a cabinet.

Look for numbers around the boxes. These are measurements. They tell you the cabinet width and height.

Next, check elevation views. These show how cabinets look from the front. You see doors and drawers here. They help you understand the cabinet style.

Section views show inside details. You can see shelves and cabinet thickness. These views help builders cut wood to the right size.

Finally, check the materials list. It tells you what you need to buy. Wood types and screws are listed here.

Common Kitchen Cabinet Types

There are many types of cabinets. Blueprints show the type you want. Here are some common ones:

  • Base Cabinets: These sit on the floor. They hold sinks or ovens.
  • Wall Cabinets: These hang on the wall. They hold plates and glasses.
  • Tall Cabinets: These are tall and thin. They are good for pantry storage.
  • Corner Cabinets: These fit in kitchen corners. They use space well.
  • Drawer Cabinets: These have drawers instead of doors. Good for utensils and small items.

Steps to Create Kitchen Cabinet Blueprints

If you want to make your own blueprints, follow these steps:

  1. Measure Your Kitchen: Use a tape measure. Note length, width, and height of walls.
  2. Draw the Floor Plan: Draw your kitchen space on paper. Mark doors and windows.
  3. Plan Cabinet Placement: Decide where each cabinet will go. Think about how you use your kitchen.
  4. Draw Cabinets: Draw each cabinet as a box on the plan. Add sizes and labels.
  5. Draw Elevations: Draw front views of cabinets. Show doors, drawers, and shelves.
  6. List Materials: Write down what you need to build the cabinets.

Tips for Designing Kitchen Cabinet Blueprints

  • Plan Storage: Think about what you store in cabinets.
  • Use Standard Sizes: Many cabinets come in standard sizes. This saves money.
  • Allow Space: Leave space for appliances and walking.
  • Think About Height: Make sure you can reach all shelves.
  • Use Simple Drawings: Clear and simple blueprints are easier to follow.

Common Measurements in Cabinet Blueprints

Here are some common cabinet sizes you might see:

Cabinet TypeWidth (inches)Height (inches)Depth (inches)
Base Cabinets12 to 4834.524
Wall Cabinets12 to 3612 to 4212
Tall Cabinets18 to 3684 to 9624

These sizes can change. Always check your kitchen space first.

Using Technology for Kitchen Cabinet Blueprints

Today, many people use computer programs to draw blueprints. These programs make drawing easy and fast. You can change sizes with a click. Some popular programs are:

  • SketchUp
  • AutoCAD
  • Sweet Home 3D
  • RoomSketcher

Using software helps you see your kitchen in 3D. You can move cabinets around and see how they look.

Kitchen Cabinet Blueprints: Master Your DIY Skills

Credit: www.dreamstime.com

How to Use Blueprints When Building Cabinets

Once you have blueprints, you can start building. Follow these steps:

  1. Check all measurements carefully.
  2. Buy materials from your list.
  3. Cut wood according to blueprint sizes.
  4. Assemble cabinet frames first.
  5. Add shelves, doors, and drawers.
  6. Install handles and hinges.
  7. Place cabinets in the kitchen as shown in the plan.

Work slowly and check each step. Blueprints help you build cabinets right.

Common Mistakes to Avoid

  • Not measuring the kitchen well.
  • Ignoring space for appliances.
  • Skipping elevation views in blueprints.
  • Using wrong materials.
  • Not checking doors and drawers fit.

Frequently Asked Questions

What Are Kitchen Cabinet Blueprints Used For?

Kitchen cabinet blueprints show detailed plans for building and installing cabinets.

How Do I Read Kitchen Cabinet Blueprints?

Look for dimensions, materials, and layout notes on the blueprint to understand the design.

Can Kitchen Cabinet Blueprints Save Remodeling Costs?

Yes, clear blueprints help avoid mistakes and reduce waste, saving money on remodels.

What Tools Do I Need To Create Cabinet Blueprints?

Basic tools include graph paper, pencil, ruler, and cabinet design software for accuracy.

Conclusion

Kitchen cabinet blueprints are key to a good kitchen. They show clear plans for building and placing cabinets. Blueprints help save time and money. They make sure cabinets fit and look good.

Whether you build cabinets yourself or hire someone, blueprints guide the work. Take time to measure and draw carefully. Use simple drawings and clear labels. This helps everyone understand the plan.

Good kitchen cabinet blueprints lead to a kitchen you will enjoy for years. Start with a plan. Then build your perfect kitchen.